歡迎訪問江蘇麻豆传媒视频免费观看環保節能科技有限公司官方網站!
江蘇麻豆传媒视频免费观看環保節能科技有限公司
電話:13770336953 胡經理
電話:13851926016 胡經理
座機:025-57031166
地址:江蘇省南京市棲霞區靖安開發區永隆橋1號
郵箱:446145111@qq.com
網址:http://www.baixin-machinery.com






| 序號 | 類別 | AAO+HBAF池+濾布濾池 | AAO池+MBR | |
| 1 | 處理效率 | 出水水質 | 較好 | 一般 |
| 2 | 處理效率 | 水質保證能力 | 穩定達標一級A | 可以穩定達標一級B,不能確保達到一級A |
| 3 | 穩定性 |
耐衝擊負荷能力 (水質、水量) |
強,二次啟動速度快,適用於斷 斷續續進水工況 |
較強,膜需連續運行,不宜斷斷續 續進水,影響膜壽命 |
| 4 | 穩定性 | 低溫的影響 | 水溫波動小,低溫運行較穩定 |
處理效果受低溫影響較大;水溫低 MBR膜通量相對降低 |
| 5 | 經濟性 | 占地麵積 | 占地較小 | 占地較小 |
| 6 | 經濟性 | 使用壽命 |
長,HBAF填料無需更換,5-7 年後每年補充率不超過3% |
短,MBR膜使用壽命3-5年需要更 換,需要增加二次投資 |
| 7 | 經濟性 | 工程建設直接費 | 5000-6000元/噸水。 | 8000-10000元/噸水。 |
| 8 | 運行要求 | 專業度 |
設備較簡單,操作簡單,技術要 求低,專業度要求低 |
設備較複雜,操作複雜, 技術要求高,需專業工程師管理 |




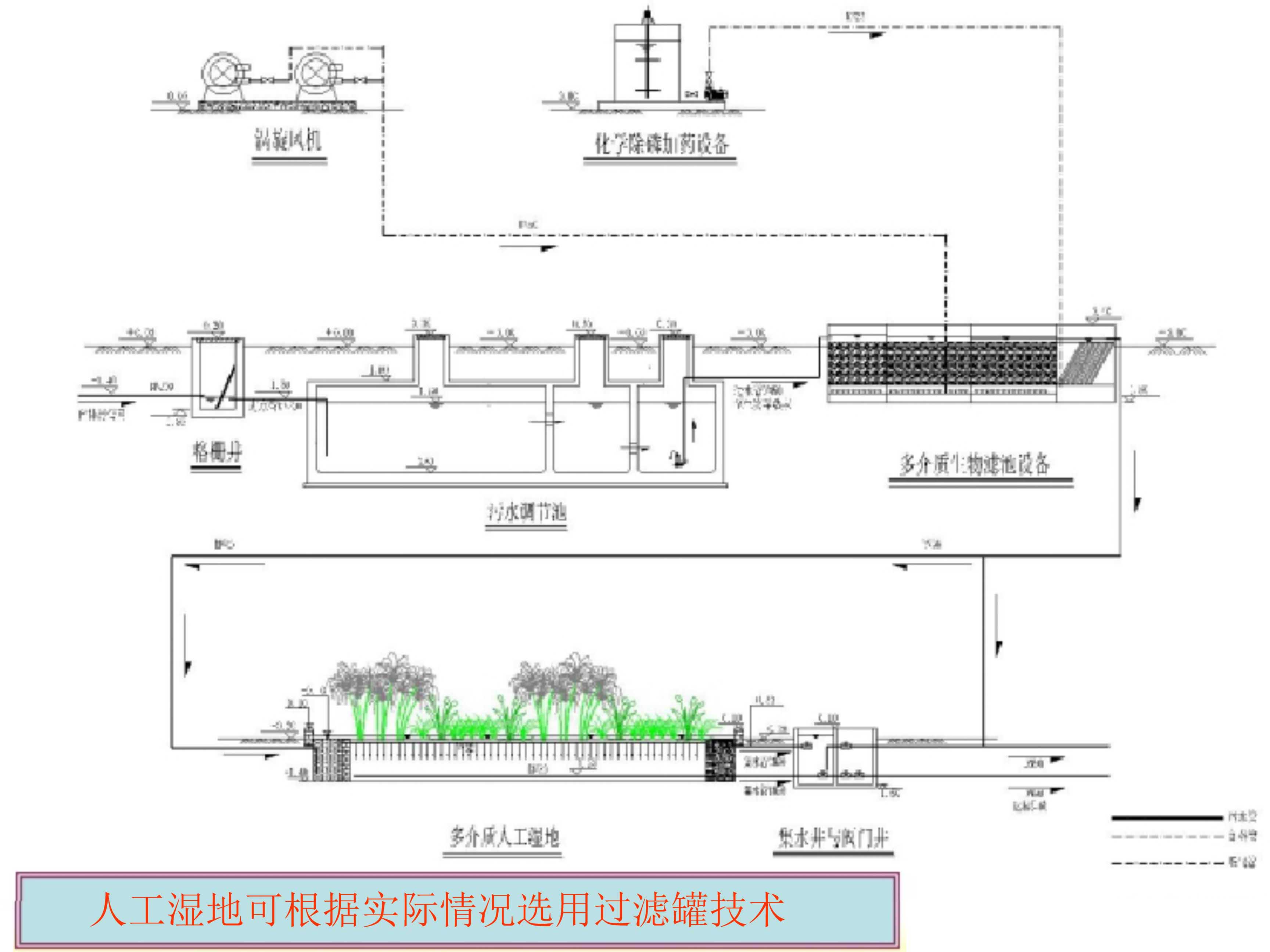
| 工藝類型 | 活性汙泥法 | 接觸氧化 | MBR | 多介質生物濾池 | 人工濕地 |
| 出水水質 | 一般 | 一般 | 很好 | 好 | 好 |
| 運行維護需求 | 日常維護 | 日常維護 | 維護較複雜 | 定期維護 | 低 |
| 設備投資 | 中 | 中 | 高 | 中 | 低 |
| 運行費用 | 高 | 較高 | 高 | 較低 | 低 |
| 低溫適應性 | 較好 | 好 | 很好 | 很好 | 差 |
| 占地麵積 | 較大 | 較小 | 小 | 小 | 較大 |
| 更換填料頻率 | 無 | 3年 | 3年 | 8~10年 | 5-8年 |
| 排泥周期 | 經常 | 經常 | 12月 | 12-24月 | 原位再生 |
| 序號 |
日處理 水量(噸 ) |
標準戶 數(戶) |
標準人 口數 (人) |
建議調節 池規格 (噸) |
多介質生物濾池標準 3 尺寸(容積/m ) |
深層布水多介質人 2 工濕地 (麵積/m ) |
備注 (PBR型號) |
||
| 序號 |
日處理 水量(噸 ) |
標準戶 數(戶) |
標準人 口數 (人) |
建議調節 池規格 (噸) |
A、D槽 | B、C槽 | 標準 | 最小 |
備注 (PBR型號) |
| 1 | 10 | 20 | 70 | 7 | 1.20 | 2.06 | 25 | 20 | JR-G10 |
| 2 | 20 | 40 | 140 | 12 | 2.00 | 4.00 | 50 | 40 | JR-G20 |
| 3 | 50 | 100 | 350 | 30 | 4.00 | 7.30 | 125 | 100 | JR-G50 |
| 4 | 80 | 160 | 560 | 45 | 4.80 | 8.50 | 200 | 160 | JR-G80 |
| 5 | 100 | 200 | 700 | 50 | 6.80 | 11.50 | 250 | 200 | JR-G100 |
| 6 | 150 | 300 | 1050 | 60 | 7.80 | 13.50 | 375 | 300 | JR-G150 |
| 7 | 200 | 400 | 1400 | 70 | 8.80 | 16.00 | 500 | 400 | JR-G200 |
| 8 | 散戶 | 1-2 | 無動力淨化槽 | ||||||
| 9 | 散戶 | 3-5 | 無動力淨化槽 | ||||||
江蘇麻豆传媒视频免费观看環保節能科技有限公司
電話:025-57031166
手機:13851926016
13770336953
Q Q:446145111 郵箱:446145111@qq.com
傳真:025-57041166 地址:江蘇省南京市棲霞區靖安開發區永隆橋1號
![]() |
| 掃一掃關注微信 |